PROJEKT IM HERZEN LEOBENS – STUDENTENWOHNEN ODER WOHNEN/GESCHÄFTSLOKALE MÖGLICH
Zum Verkauf gelangt eine Liegenschaft, direkt im Stadtkern Leobens. Direkt…
€900.000
1160 Wien, Österreich
Zu Verkaufen
€785.000


























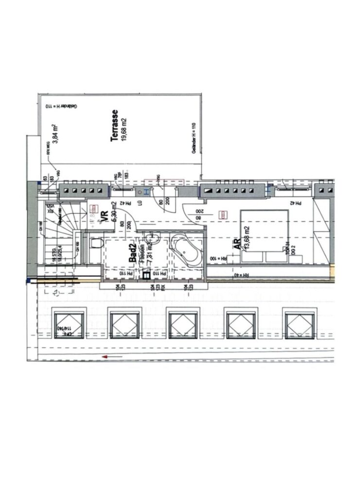
In einem gepflegten Jahrhundertwendehaus in der Lorenz-Mandl-Gasse, ruhig gelegen und gleichzeitig gut angebunden, befindet sich diese elegante Maisonette mit zwei Terrassen, verteilt auf rund 116 m² Wohnfläche. Das Wohnen spielt sich dabei auf zwei Ebenen ab – mit klarer Raumlogik, viel Licht und einem Gefühl von Weite.
Bereits beim Eintreten öffnet sich ein heller Wohnbereich, dessen Dachschrägen und Fensterflächen dem Raum eine angenehme, luftige Wirkung verleihen. Die Küche ist harmonisch in den Wohnraum integriert: funktional, modern und mit klaren Linien gestaltet – ein Platz, an dem Kochen und Zusammensein selbstverständlich ineinander übergehen.
Auf dieser unteren Ebene befinden sich außerdem zwei Schlafzimmer, die sich flexibel als Kinderzimmer, Arbeitszimmer oder Gästebereich nutzen lassen. Das Badezimmer mit Dusche und WC befindet sich ebenfalls auf dieser Wohnebene und ist praktisch, zeitlos und angenehm gestaltet. Zwei Abstellräume sorgen dafür, dass Ordnung mühelos gelingt – ein stiller Vorteil, den man erst im Alltag wirklich schätzt.
Die kleinere der beiden Außenflächen – die Terrasse auf der unteren Ebene (ca. 8,36 m²) – ist direkt vom Wohnbereich aus zugänglich. Sie eignet sich ideal für morgendlichen Kaffee, Kräuterpflanzen oder kurze Momente in der Sonne während des Tages. Über die wohnliche Innentreppe gelangt man auf die obere Ebene, die vollständig als privater Rückzugsbereich gedacht ist. Hier befindet sich der Master Bedroom – ruhig, angenehm proportioniert, mit Blick in den offenen Himmel.
Angrenzend liegt das besondere Highlight dieser Wohnung: ein Bad mit Badewanne, Fensterflächen und lichtdurchflutetem Charakter, das beinahe wie ein kleiner Wintergarten wirkt. Es ist ein Ort, der dem Alltag eine ruhigere Note verleiht – ein Bad zum Abschalten, nicht nur zum Benutzen. Ein weiteres WC ist hier integriert.
Von hier aus betritt man die große Dachterrasse (ca. 20 m²).
Sie eröffnet den Blick über die Dächer des Grätzels bis hin zum Schloß Wilhelminenberg, wirkt offen und gleichzeitig privat. Hier lässt sich der Sommer leben, der Herbst betrachten und der Abend genießen – weit über dem Trubel der Stadt.
Lage/Infrastruktur
Die Lorenz-Mandl-Gasse liegt im beliebten Teil Ottakrings – dort, wo sich ruhiges Wohnen und lebendige Stadtkultur angenehm ergänzen.
Die U3 Ottakring sowie die S45 sind in wenigen Gehminuten erreichbar und bringen Sie direkt ins Stadtzentrum oder hinaus in die Grünlagen der Vorstadt. Mit den Straßenbahnlinien 2, 9, 10, 44 und 46 erreichen Sie schnell verschiedene Ziele der Stadt. Ob ins Stadtzentrum, zu kulturellen Highlights oder in die umliegenden Wohngegenden – die Anbindung ermöglicht Ihnen flexible Mobilität und unkomplizierte Erreichbarkeit.
Der Brunnenmarkt und der Yppenplatz liegen in kurzer Distanz – hier treffen Marktstände auf Cafés, Ateliers und Restaurants. Ein Stück Wien, das Vielfalt und Nachbarschaft lebt.
Für Freizeit und Erholung bietet sich der Wilhelminenberg mit seinen Spazierwegen, Wäldern und dem Blick über die Stadt an.
Auch der Kongresspark und das Wilhelminenbad sind schnell erreichbar – ideal für Laufen, Schwimmen, Tennis oder einfach ein paar ruhige Schritte ins Grüne.
Nahversorgung ist bequem zu Fuß erreichbar: Supermärkte, Bäckereien, Apotheken, Bildungseinrichtungen und kleine Geschäfte liegen im direkten Umfeld.
Ein Grätzel, das lebt, ohne laut zu sein. Ein Stück Stadt, das sich gewachsen anfühlt, nicht gemacht.
Kaufpreis: 785.000,00 Euro
BK inkl. Rep-Rücklage : 442,32 Euro
Provision: 3% des Kaufpreises zzgl. MwSt.
Für weitere Fragen oder persönliche Besichtigungstermine wenden Sie sich an Frau Alexandra Kassler, BA MA unter 0699 / 14 5000 62 oder kassler@wohn-salon.at
Wir weisen darauf hin, dass zwischen dem Vermittler und dem zu vermittelnden Dritten ein familiäres oder wirtschaftliches Naheverhältnis besteht.
Der Vermittler ist als Doppelmakler tätig.
Infrastruktur / Entfernungen
Gesundheit
Arzt <500m
Apotheke <500m
Klinik <500m
Krankenhaus <500m
Kinder & Schulen
Schule <500m
Kindergarten <500m
Universität <1.500m
Höhere Schule <1.000m
Nahversorgung
Supermarkt <500m
Bäckerei <500m
Einkaufszentrum <1.000m
Sonstige
Geldautomat <500m
Bank <500m
Post <500m
Polizei <500m
Verkehr
Bus <500m
U-Bahn <500m
Straßenbahn <500m
Bahnhof <500m
Autobahnanschluss <5.500m
Angaben Entfernung Luftlinie / Quelle: OpenStreetMap
Wilhelminenberg, U3 Ottakring, Yppenplatz
Zum Verkauf gelangt eine Liegenschaft, direkt im Stadtkern Leobens. Direkt…
€900.000
ZUR WOHNUNG STIEGE 1 TOP 32: Man betritt die im…
€333.200
Traumhafte Dachgeschosswohnung in 1230 Wien – Erstbezug mit Balkon und Terrassen!
Daheim. In Miete oder Eigentum
Wohnsalon