Neues Zuhause in Wilfersdorf bei Tulln : Erstbezug, 144,79m², 2 Stellplätze, Garten
illkommen in Ihrem neuen Zuhause in der idyllischen Gemeinde Wilfersdorf…
€2.200
1190 Wien, Österreich
Zu Verkaufen
€1.300.000
















Willkommen in Ihrem neuen Zuhause im begehrten 19. Bezirk – dort, wo urbane Eleganz auf die idyllische Kulisse der umliegenden Weinberge trifft.
Diese erstklassige Erstbezugswohnung vereint modernen Wohnkomfort, hochwertige Architektur und eine Lage, die durch ihre besondere Mischung aus Natur, Ruhe und Stadtnähe besticht.
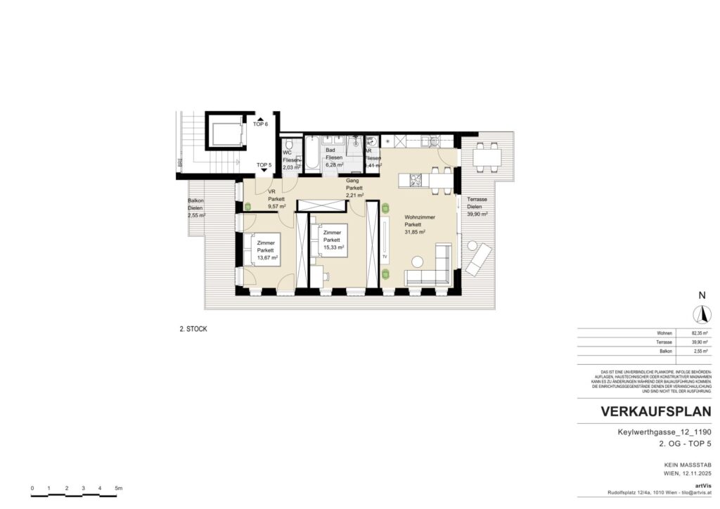
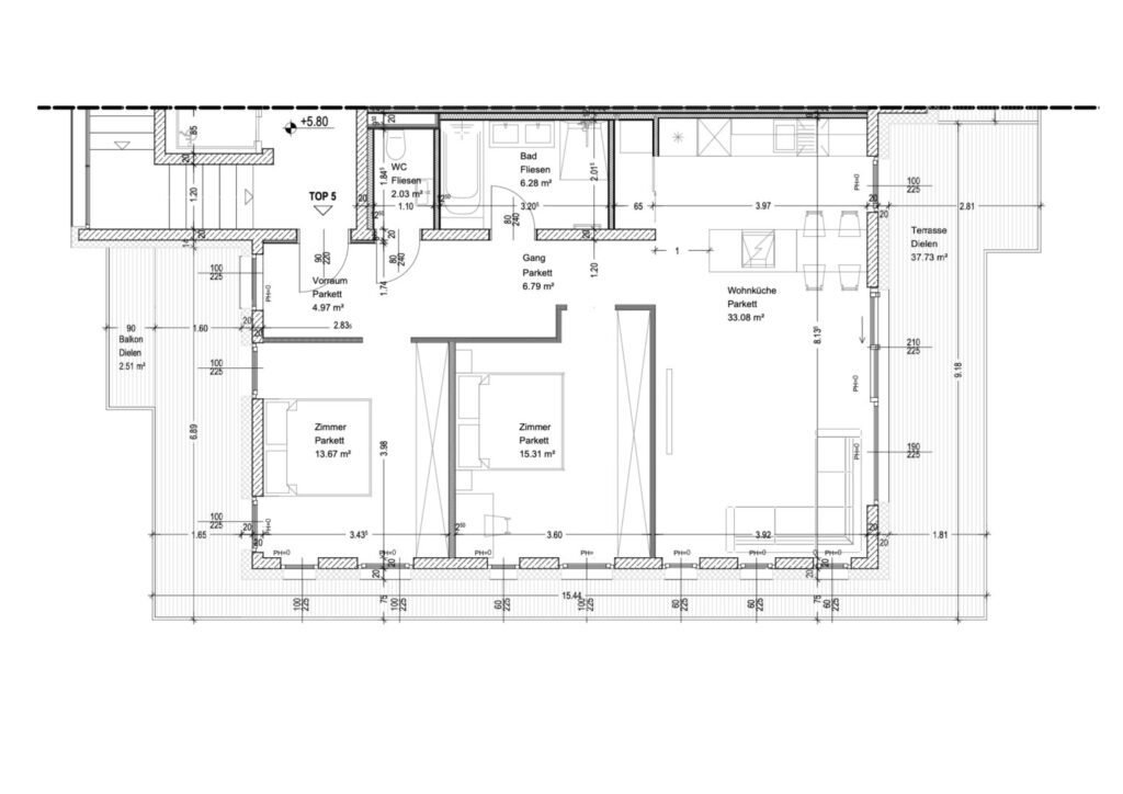
Auf 82,52 m² öffnet sich Ihnen eine lichtdurchflutete 3-Zimmer-Wohnung, deren durchdachter Grundriss und edle Materialauswahl ein exklusives Wohnambiente schaffen. Feine Details, klare Linien und hochwertige Ausführung prägen das stilvolle Gesamtbild.
Die im 1. Dachgeschoss gelegene Wohnung begeistert durch ihre offene Raumgestaltung sowie zwei attraktive Außenbereiche:
eine ostseitige Terrasse (ca. 38 m²), die Ihnen morgens die Sonne und einen herrlichen Blick auf die Weinberge schenkt
ein kleiner westseitiger Balkon, perfekt für stimmungsvolle Abendstunden.
Ob entspanntes Lesen im Grünen, sonnige Momente an Wochenenden oder gesellige Abende – diese Außenflächen werden rasch zu Ihrem persönlichen Rückzugsort über den Dächern Wiens.
Edle Parkett- und Steinböden verleihen den Räumen zeitlose Eleganz.
Eine effiziente Fußbodenheizung sorgt für Wohlfühlatmosphäre an kühleren Tagen, während die Klimaanlage im Sommer ein perfektes Raumklima garantiert – Komfort auf höchstem Niveau.
Das Haus verfügt über einen modernen Personenaufzug. Für Ihr Fahrzeug steht eine Tiefgarage bereit; ein Stellplatz kann um € 50.000 erworben werden.
Die Abwicklung erfolgt gemäß BTVG, betreut durch den erfahrenen Treuhänder Dr. Günther Retter, der eine sichere und professionelle Vertragsführung gewährleistet.
Mit der unmittelbaren Nähe zu den Weinbergen des 19. Bezirks genießen Sie Spaziergänge, sportliche Aktivitäten und besondere Naturmomente direkt vor der Haustür. Gleichzeitig bietet die nahe Bushaltestelle eine rasche Verbindung in die Innenstadt. Schulen, Einkaufsmöglichkeiten und wichtige Einrichtungen befinden sich in fußläufiger Umgebung – ideal für Paare und Familien.
€ 1.300.000 – für eine hochwertige, stilvolle Wohnung mit außergewöhnlicher Wohnqualität in einer der exklusivsten Lagen Wiens.
Zögern Sie nicht – diese besondere Immobilie zählt zu den seltenen Gelegenheiten am Markt.
Vereinbaren Sie noch heute Ihren persönlichen Beratungstermin. Ihr neues Zuhause im 19. Bezirk erwartet Sie.
Kontakt
Frau Betül Cakmak
📞 0676 / 845 360 400
📧 cakmak@wohn-salon.at
Wir weisen darauf hin, dass zwischen dem Vermittler und dem zu vermittelnden Dritten ein familiäres oder wirtschaftliches Naheverhältnis besteht.
Der Vermittler ist als Doppelmakler tätig.
Infrastruktur / Entfernungen
Gesundheit
Arzt <2.000m
Apotheke <1.500m
Klinik <3.500m
Krankenhaus <3.000m
Kinder & Schulen
Schule <500m
Kindergarten <1.500m
Universität <4.000m
Höhere Schule <4.000m
Nahversorgung
Supermarkt <1.500m
Bäckerei <2.000m
Einkaufszentrum <4.000m
Sonstige
Geldautomat <3.000m
Bank <3.000m
Post <1.500m
Polizei <3.500m
Verkehr
Bus <500m
Straßenbahn <2.500m
U-Bahn <4.000m
Bahnhof <4.000m
Autobahnanschluss <6.000m
Angaben Entfernung Luftlinie / Quelle: OpenStreetMap
Diese attraktive Immobilie befindet sich im begehrten 19. Wiener Gemeindebezirk, bekannt für seine ruhigen Wohngegenden und grünen Oasen. Umgeben von einer freundlichen Nachbarschaft sind Schulen und öffentliche Verkehrsanbindungen wie Buslinien in unmittelbarer Nähe. Hier genießen Sie die perfekte Kombination aus urbanem Leben und naturnahem Wohnen. Einkaufsmöglichkeiten, Cafés und Freizeitangebote sind ebenfalls schnell erreichbar und machen diesen Standort besonders lebenswert und attraktiv.
illkommen in Ihrem neuen Zuhause in der idyllischen Gemeinde Wilfersdorf…
€2.200
Design & Nachhaltigkeit in vollendeter Harmonie In Wien-Hietzing wurde im…
€1.779.278
VILNEA TWELVE – URBANE ELEGANZ TRIFFT NATUR
Daheim. In Miete oder Eigentum
Wohnsalon