ERSTBEZUG! ENTZÜCKENDE SINGLE-WOHNUNG IM DACHGESCHOSS – JETZT SCHNELL SEIN
ZUR WOHNUNG TOP 28: Nach dem Betreten der ca. 31,…
€936
1190 Wien, Österreich
Zu Verkaufen
€1.500.000

















Willkommen in Ihrem neuen Zuhause im exklusiven 19. Bezirk! Diese erstklassige Erstbezugswohnung vereint modernen Wohnkomfort, stilvolle Architektur und eine Lage, die höchste Lebensqualität verspricht.
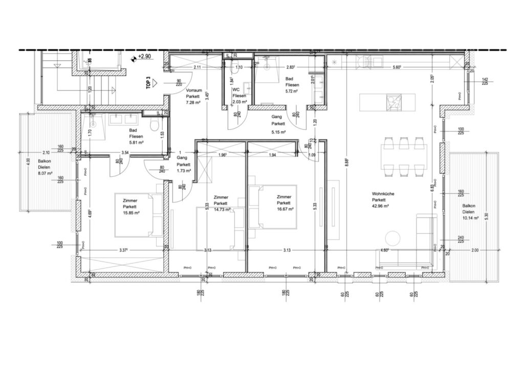
Auf großzügigen 120,08 m² erwartet Sie eine lichtdurchflutete 4-Zimmer-Wohnung, die durchdacht geplant und hochwertig ausgeführt wurde. Vom eleganten Design bis zu den ausgewählten Materialien – hier entsteht ein Wohnambiente, das keine Wünsche offen lässt.
Die im 1. Stock gelegene Wohnung besticht durch großzügige Raumaufteilung sowie zwei Balkone, wobei einer ost- und einer westseitig ausgerichtet ist. Optimal, um gemütliche Stunden im Freien zu jeder Tageszeit, entspanntes Lesen im Grünen oder gesellige Abende mit Freunden – dieser Außenbereich wird schnell zu Ihrem persönlichen Rückzugsort mitten in der Stadt.
Im Innenraum sorgen edle Parkett- und Steinböden für zeitlose Eleganz, während die Fußbodenheizung an kühleren Tagen für angenehme Wohlfühlwärme sorgt. Zusätzlichen Komfort bietet eine Klimaanlage, die auch im Sommer ein ideales Raumklima garantiert.
Das Gebäude verfügt über einen modernen Personenaufzug. Für Ihr Fahrzeug steht eine Tiefgarage zur Verfügung, die Sicherheit und Komfort vereint. Hier kann ein Stellplatz zu einem Preis von € 50.000 erworben werden.
Die Abwicklung des Projekts erfolgt gemäß den gesetzlichen Vorgaben des Bauträgervertragsgesetzes (BTVG). Mit der treuhändigen Abwicklung wurde Dr. Günther Retter aus Mödling beauftragt, der die ordnungsgemäße und sichere Vertragsabwicklung gewährleistet.
Die hervorragende Verkehrsanbindung mit einer nahegelegenen Busstation stellt eine schnelle Verbindung in die Innenstadt sicher. Schulen und weitere wichtige Einrichtungen befinden sich ebenfalls in unmittelbarer Umgebung – ideal für Paare und Familien.
Zum Kaufpreis von € 1.500.000 erwerben Sie nicht nur eine hochwertige Wohnung, sondern ebenfalls ein außergewöhnliches Stück Wohnqualität in einer der begehrtesten Lagen Wiens.
Zögern Sie nicht und sichern Sie sich diese besondere Immobilie. Vereinbaren Sie noch heute Ihren persönlichen Beratungstermin – Ihr neues Zuhause in 1190 Wien wartet bereits auf Sie!
Für weitere Informationen und persönliche Besichtigungen wenden Sie sich bitte an:
Frau Betül Cakmak
📞 0676 / 845 360 400
📧 cakmak@wohn-salon.at
Wir weisen darauf hin, dass zwischen dem Vermittler und dem zu vermittelnden Dritten ein familiäres oder wirtschaftliches Naheverhältnis besteht.
Der Vermittler ist als Doppelmakler tätig.
Infrastruktur / Entfernungen
Gesundheit
Arzt <2.000m
Apotheke <1.500m
Klinik <3.500m
Krankenhaus <3.000m
Kinder & Schulen
Schule <500m
Kindergarten <1.500m
Universität <4.000m
Höhere Schule <4.000m
Nahversorgung
Supermarkt <1.500m
Bäckerei <2.000m
Einkaufszentrum <4.000m
Sonstige
Geldautomat <3.000m
Bank <3.000m
Post <1.500m
Polizei <3.500m
Verkehr
Bus <500m
Straßenbahn <2.500m
U-Bahn <4.000m
Bahnhof <4.000m
Autobahnanschluss <6.000m
Angaben Entfernung Luftlinie / Quelle: OpenStreetMap
Diese attraktive Immobilie befindet sich im begehrten 19. Wiener Gemeindebezirk, bekannt für seine ruhigen Wohngegenden und grünen Oasen. Umgeben von einer freundlichen Nachbarschaft sind Schulen und öffentliche Verkehrsanbindungen wie Buslinien in unmittelbarer Nähe. Hier genießen Sie die perfekte Kombination aus urbanem Leben und naturnahem Wohnen. Einkaufsmöglichkeiten, Cafés und Freizeitangebote sind ebenfalls schnell erreichbar und machen diesen Standort besonders lebenswert und attraktiv.
ZUR WOHNUNG TOP 28: Nach dem Betreten der ca. 31,…
€936
Zum Verkauf gelangen ab sofort 3 Reihenhäuser zwischen 108 m²…
€560.000
LUXURIÖSE 4-ZIMMER-WOHNUNG IN WIEN 19 – ERSTBEZUG MIT 2 BALKONEN
Daheim. In Miete oder Eigentum
Wohnsalon