DAHEIM IN HERNALS – DACHGESCHOSS MIT HERRLICHER SÜD-TERRASSE
ZUR WOHNUNG TOP 25: Gleich nach dem Eintreten in die…
€299.000
1120 Wien, Österreich
Zu Verkaufen
€329.000



































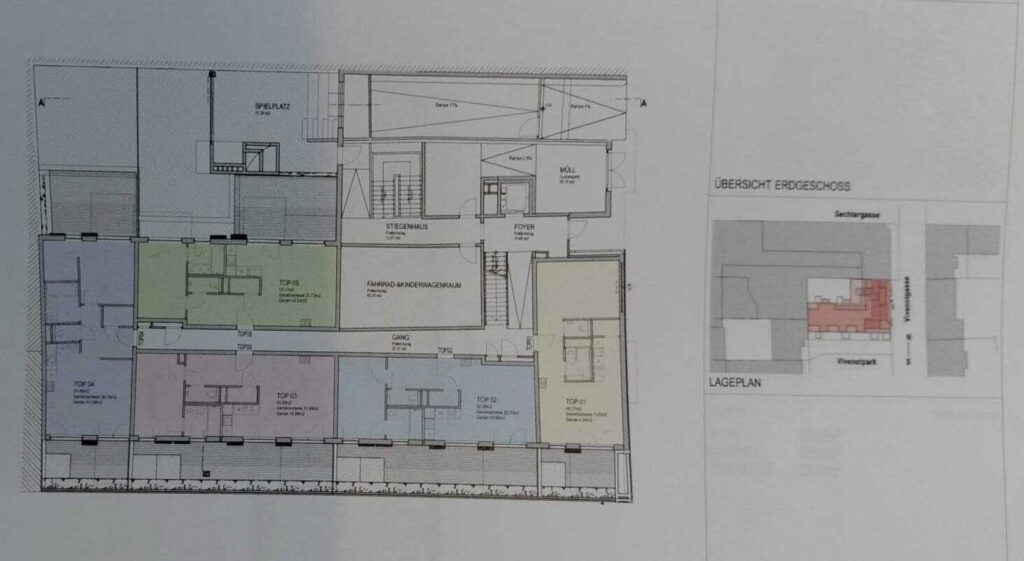
Zum Verkauf gelangt eine ausgesprochen gepflegte 2-Zimmer-Gartenwohnung mit gleich 2 Terrassen und idyllischem Garten, in einen ruhigen Innenhof ausgerichtet. Die Wohnung liegt im Erdgeschoss eines modernen Neubaus Baujahr 2013 in absolut zentraler Lage Meidlings.
ZUR WOHNUNG:
Über ein freundliches, helles und modern gestaltetes Stiegenhaus gelangt man barrierefrei direkt zur Wohnung, welche eine Größe von knapp 54 m² aufweist.
Man betritt die Wohnung über einen Vorraum, welcher mit etwa 7 m² ausreichend Platz für eine Garderobe bietet und von welchem sämtliche Zimmer zentral zu begehen sind.
So liegt zur Linken die offen gestaltete Wohnküche. Die Einbauküche ist zeitlos in mattem Weiß gehalten und mit sämtlichen Geräten des heutigen Standards ausgestattet. Auf über 23 m² lassen sich eine Couch und ein gemütlicher Essbereich ideal platzieren. Über eine große doppelseitige Terrassentüre kommt man auf die kleinere der beiden Terrassen mit knapp 14 m², welche in Richtung Osten ausgerichtet ist und wunderbar Platz für ein kleines Frühstücks-Ensemble bietet. Die bereits groß gewordenen Kirschlorbeer bilden einen guten Sichtschutz nach draußen in Richtung Vivenotpark.
Zur Rechten des Vorraums liegt ein praktischer Abstellraum – perfekt, um Utensilien des Haushalts, aber auch Lebensmittelvorräte, diskret zu verstauen.
Das Badezimmer ist in warmen Beige gehalten und bietet auf rund 4,50 m² eine Badewanne, einen Waschtisch mit großflächigem Spiegel, eine Abstellfläche für Kosmetika sowie einen elektrischen Handtuchtrockner und einen Waschmaschinen-Anschluss. Die separate Toilette ist mit einem kleinen Handwaschbecken ausgestattet.
In angenehmer Süd-West-Ausrichtung liegt der kompakte Schlafbereich, mit zusätzlichem extra Schrankraum. Gesamt weisen diese beiden Bereiche eine Größe von über 16 m² auf. Eine gute Größe, um ein Doppelbett und Kommoden zu platzieren. Der separate Schrankbereich ist mit hochwertigen Maßeinbaumöbeln ausgestattet. Die herrliche Terrasse und der Garten sind über beide dieser Räumlichkeiten zu begehen – hier tut sich eine Grünoase mitten in der Stadt auf. Die Terrassen sind mit warmen Lerchenholz vertäfelt, der Garten mit Rollrasen versehen. Hier schlägt garantiert jedes Gärtnerherz höher, dem Anbau von Gemüse und Kräutern, oder aber der Pflege von Rosen, Hortensien usw. steht nichts mehr im Wege.
Besonders hervorzuheben ist die Umrahmung von Terrasse und Garten über eine hohe Mauer, welche das Gefühl von Sicherheit bietet, aber auch vor fremden Blicken schützt und keinerlei Passanten vorbeigehen lässt. Angeschlossen liegt lediglich eine weitere Gartenwohnung, welche durch Hecken optisch abgetrennt ist. Am Ende des Gartens liegt ein schmaler Servitutweg samt versperrbarem Gartentor, um Rasenschnitt und Erde über das Stiegenhaus auf direktem Weg im Müllraum (Biotonne) zu entsorgen.
Die Wohnung verfügt über keine Fenster im herkömmlichen Sinne, sondern ausschließlich über Terrassentüren. Diese sind mit hochwertigen Schiebeelementen aus Holz zu beschatten, auf der Innenseite der Fenster befinden sich Jalousien.
Zusammengefasst eine gemütliche Gartenwohnung in guter Lage des 12. Bezirks – ideal für Paare, die Ruhe in der eigenen Grünoase suchen, sowie die zentrale Lage, die hervorragende öffentliche Anbindung und die unmittelbare Nähe an Nahversorgung auf der Meidlinger Hauptstraße schätzen.
Abgerundet wird das Wohnungsangebot durch ein zugehöriges Kellerabteil und einen Fahrrad-/Kinderwagen-Raum.
DIE AUSSTATTUNG:
– Fußbodenheizung/Fernwärme
– Innenjalousien – Holzschiebeelemente außen
– Weitzer Parkett Eiche
– Badezimmer mit Wanne
– Terrassenbelag Lerche
– Kellerabteil und Fahrradabstellraum
INFRASTRUKTUR:
Die Lage der Liegenschaft ist als hervorragend zu bezeichnen – sämtliche Nahversorger sind bequem fußläufig auf der Meidlinger Hauptstraße zu erreichen. Das Naherholungsgebiet Wienerberg erreicht man zu Fuß in etwa fünfzehn Minuten, nach Schönbrunn sind es etwa zwanzig Minuten. Der Meidlinger Markt hat sich in den letzten Jahren rasant entwickelt und erwartet Sie mit kulinarischen Gaumenfreuden zwischen Österreich und Vietnam sowie regionalen frischen Lebensmitteln wie Obst, Gemüse, Käse und Wurstwaren.
Zum Bahnhof Meidling sind es lediglich wenige Gehminuten, von hier verkehren die Schnellbahn Linien S1, S2, S3, S4, S60 und S80 sowie die Fernzüge der ÖBB – Railjet, Intercity, Regionalzüge. Nach nur vier U-Bahn-Stationen der Linie U6 ist man am Westbahnhof, nach 2 Stationen bei der U4 Längenfeldgasse.
Mit dem PKW hat man eine sehr gute Anbindung in Richtung Süden, nach etwa 10 Fahrminuten gelangt man zum Altmannsdorfer Ast auf die A2, nach etwa 15 Minuten zum Autobahnanschluss auf die A1 Auhof.
KAUFPREIS: 329.000,00 Euro
Betriebskosten inkl. USt.: 184,80 Euro
Reparaturrücklage: 72,68 Euro
Provision: 3% + 20% USt. vom Kaufpreis
Für weitere Fragen oder einen persönlichen Besichtigungstermin wenden Sie sich bitte an Frau Nina Hafenrichter unter 0676/32 64 699, oder hafenrichter@wohn-salon.at.
Besichtigungen sind nach individueller Rücksprache möglich, nachdem die Wohnung aktuell noch von den Eigentümern bewohnt wird!
Wir weisen darauf hin, dass zwischen dem Vermittler und dem zu vermittelnden Dritten ein familiäres oder wirtschaftliches Naheverhältnis besteht.
Der Vermittler ist als Doppelmakler tätig.
Meidlinger Hauptstraße, Bahnhof Meidling
ZUR WOHNUNG TOP 25: Gleich nach dem Eintreten in die…
€299.000
Zum Verkauf gelangt eine vermietete, vollmöblierte 108,60 m2 große Familienwohnung…
€590.000
Traumwohnung in Hurghada: 2-Zimmer-Oase mit Balkon ab 43.000 €!
Daheim. In Miete oder Eigentum
Wohnsalon